

Video


















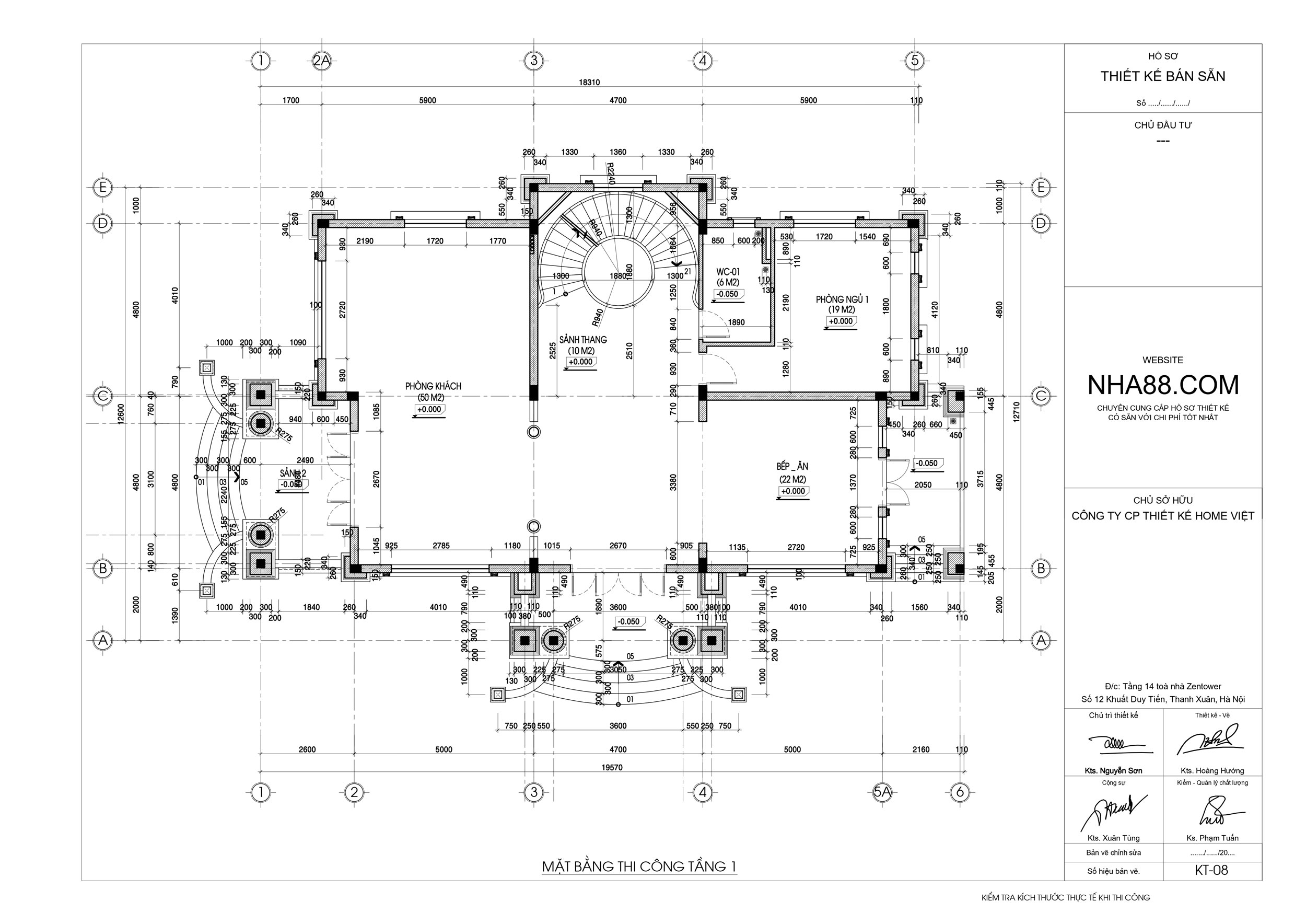
1.1 – Sảnh chính
1.2 – Phòng khách
>>Diện tích: 35m2
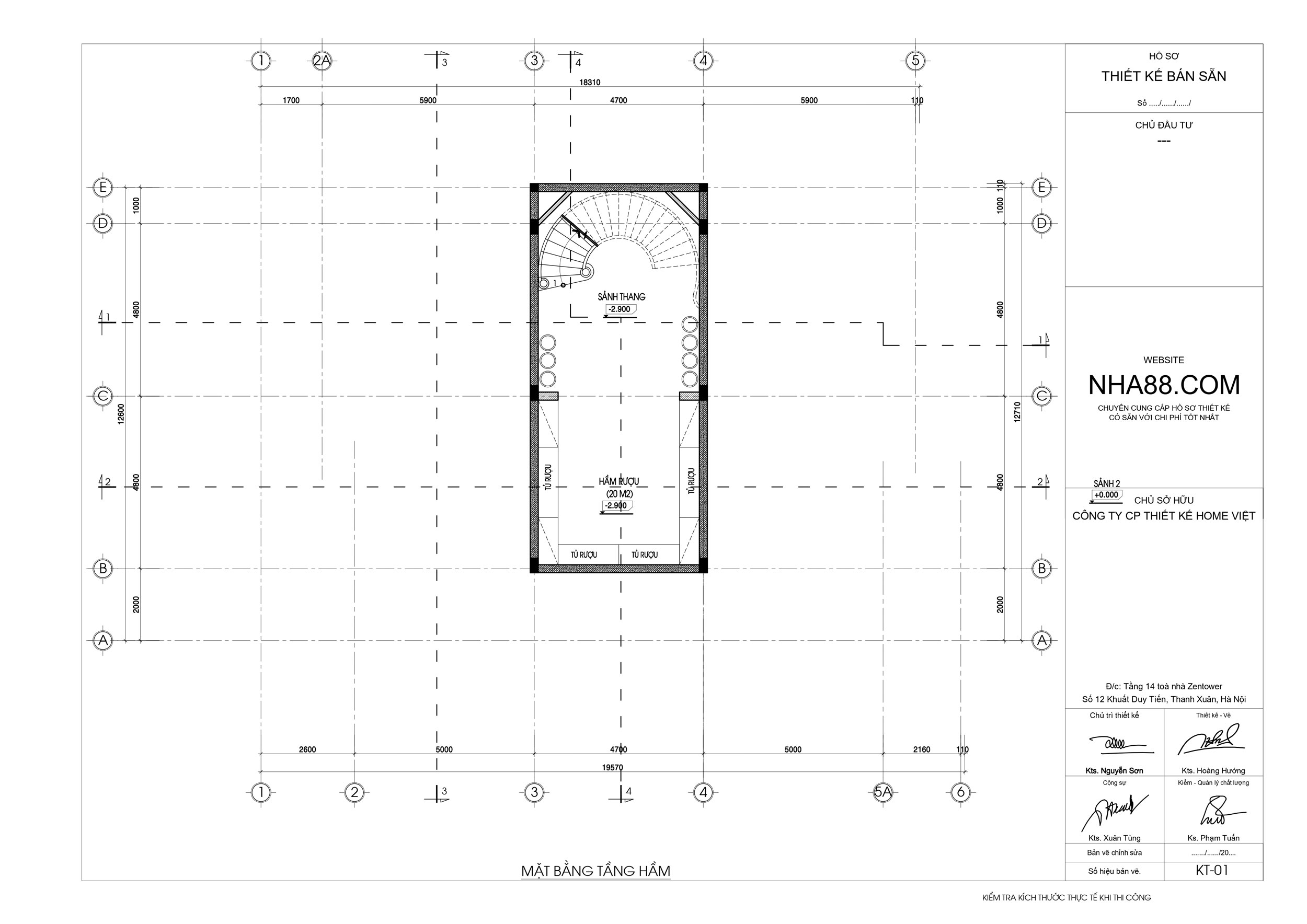
1.3 – Hành lang + Thang bộ
>> Diện tích: 23m2
1.4 – Sảnh phụ (Lối đi vào bếp và thang)
1.5 – Phòng ăn
>> Diện tích: 16.6m2
1.6 – Phòng bếp nấu + Soạn đồ
>> Diện tích: 15.6 m2
1.7 – Sân sau (Gia công thô)
1.8 – Vị trí bồn hoa
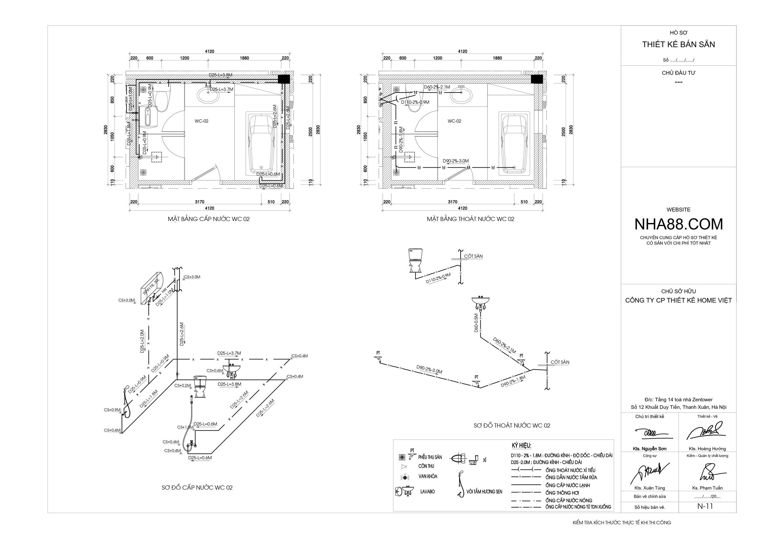
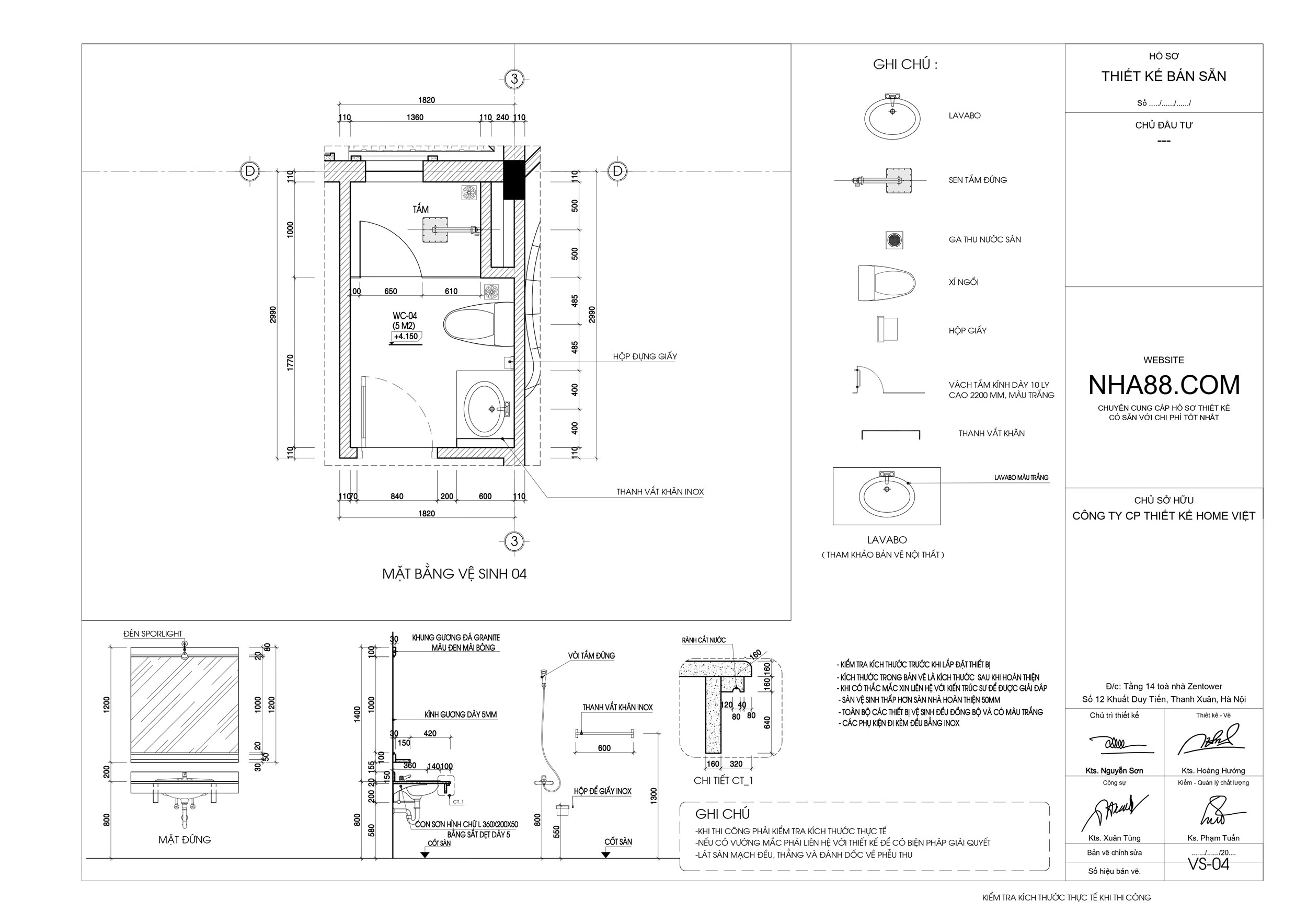
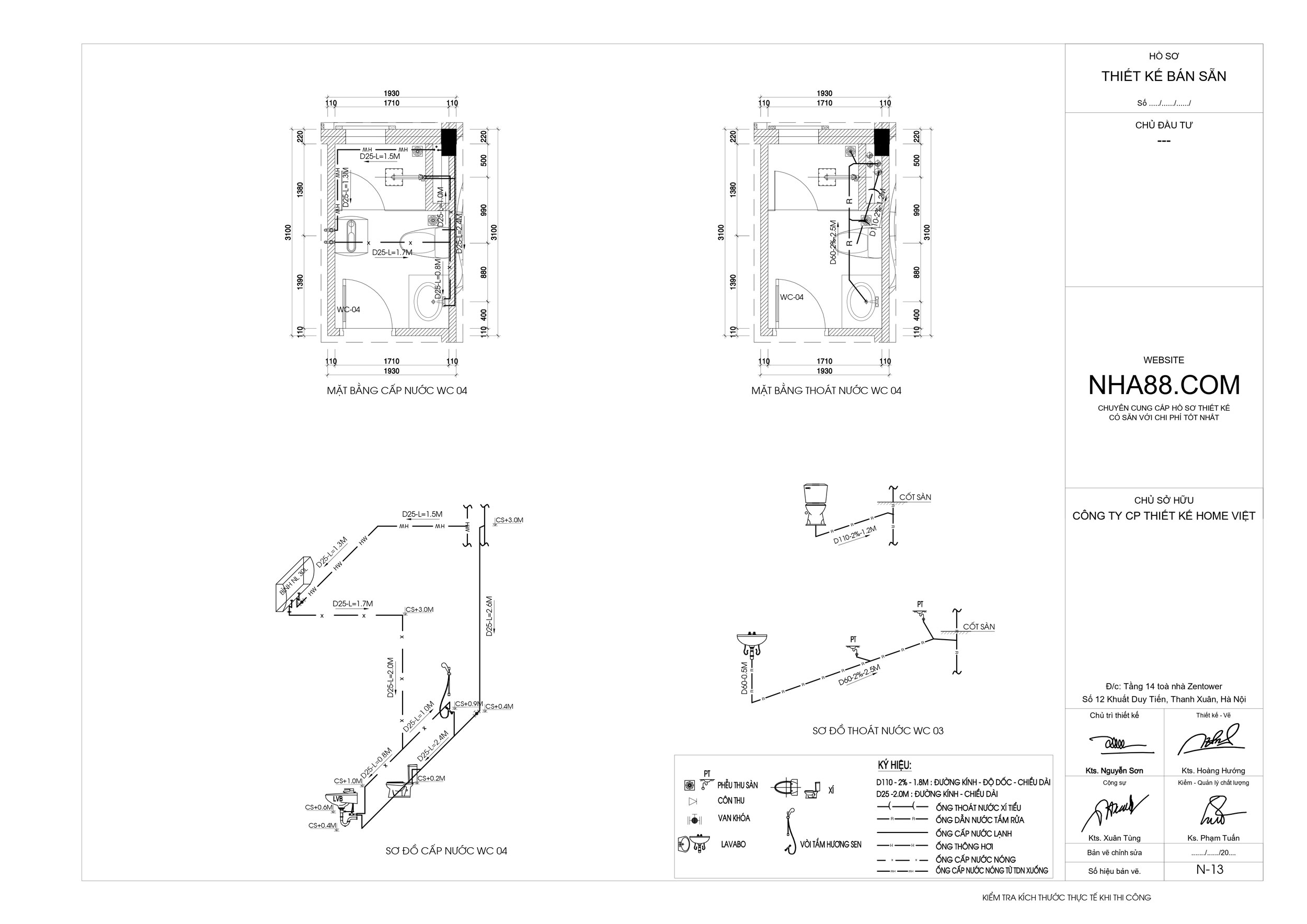
1.9 – Vệ sinh khách
>>> Diện tích: 4m2
























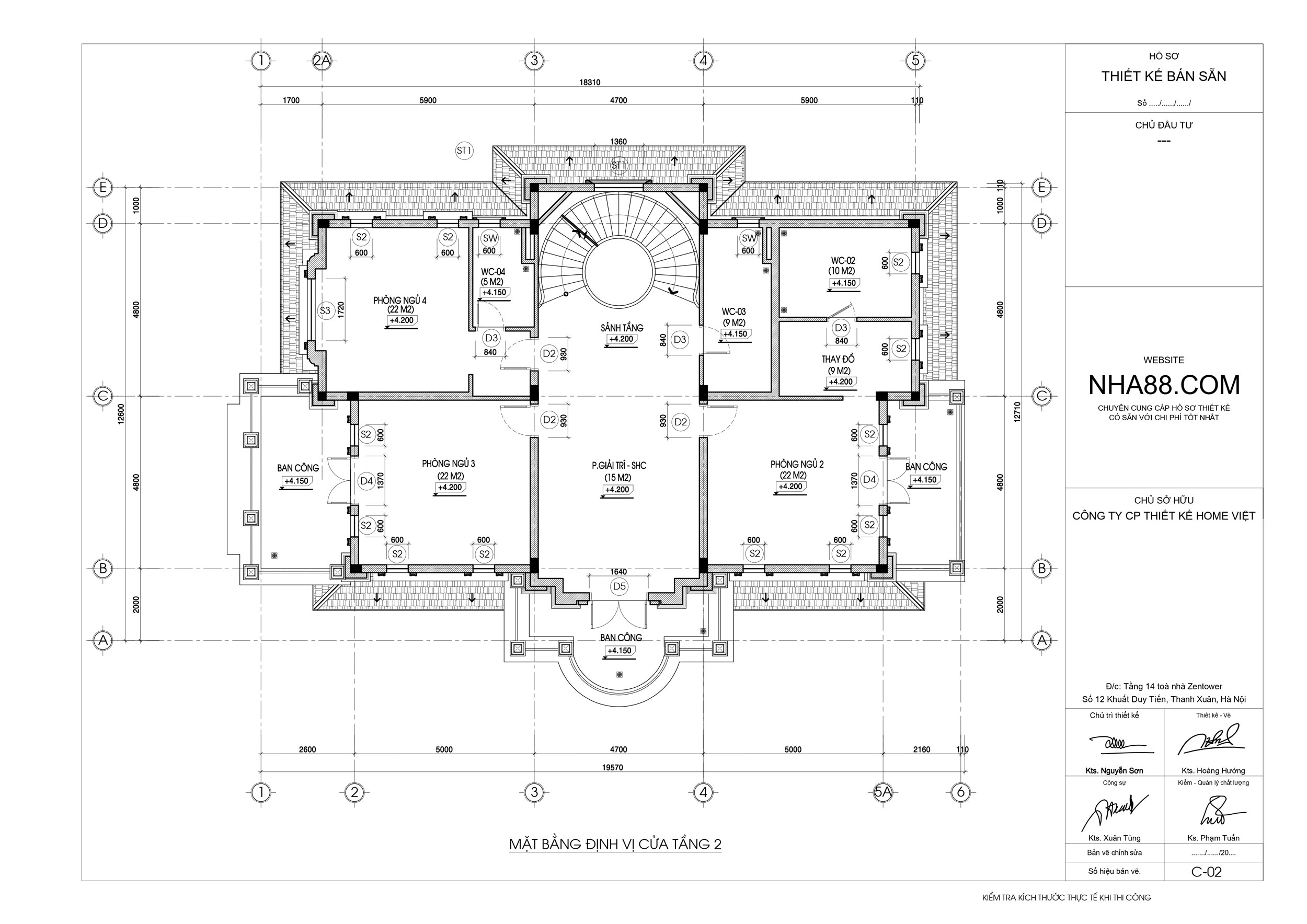
2.1 – Hành lang + Sinh hoạt chung
>>> Diện tích: 13m2
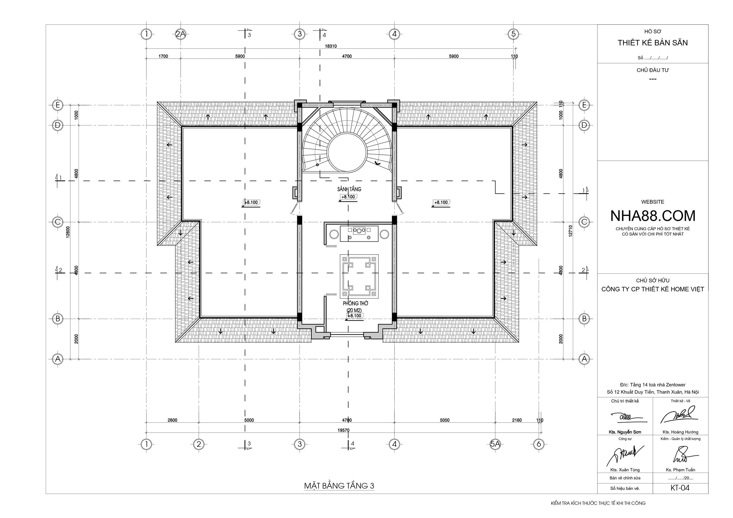
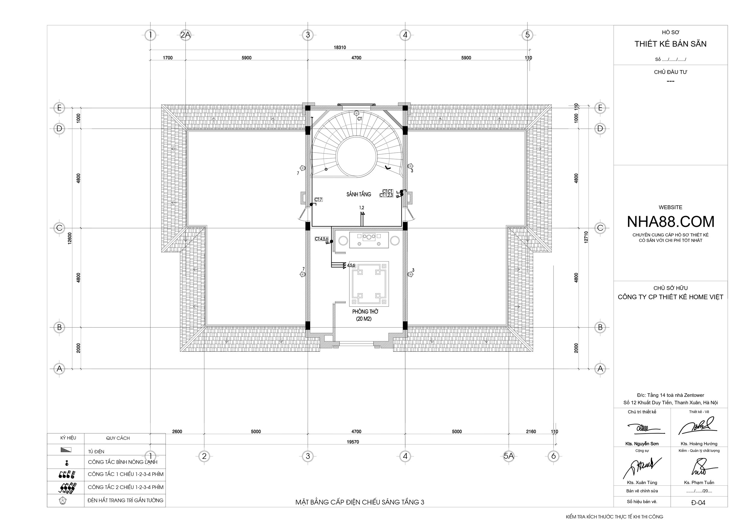
2.2 – Phòng thờ
>>> Diện tích 14.2m2
2.3 – Ban công phòng sinh hoạt chung
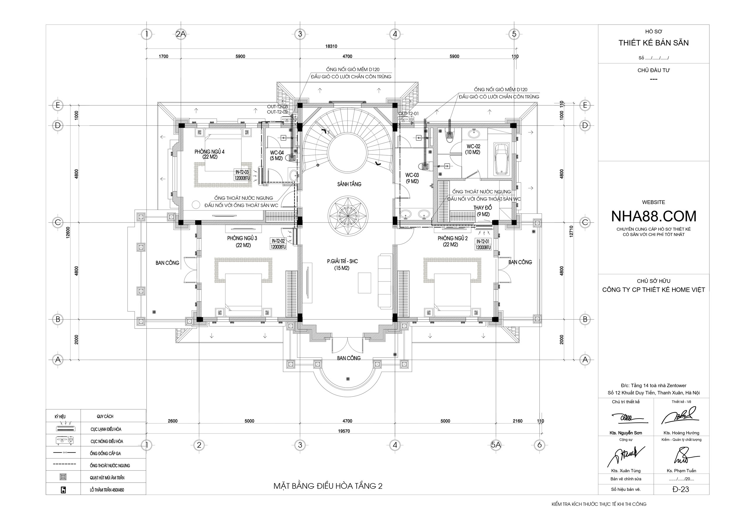
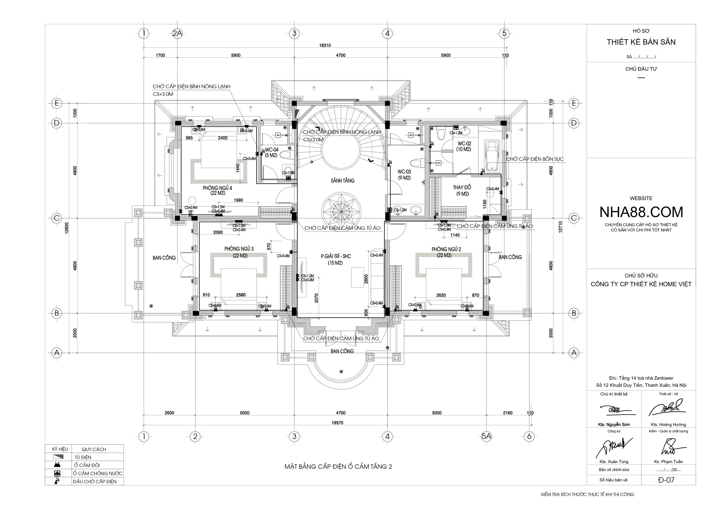
2.4 – Phòng ngủ 2.1
>>> Diện tích: 12.8m2
2.5 – Vệ sinh ngủ 2.1
>> Diện tích: 4.1m2
2.6 – Phòng ngủ 2.2
>> Diện tích: 17m2
2.7 – Vệ sinh ngủ 2.2
>>> Diện tích: 5.2 m2
2.8 – Phòng ngủ 2.3
>>> Diện tích: 13.5m2
2.9 – Vệ sinh ngủ 2.3
>>> Diện tích: 4.1m2




























































HỒ SƠ THIẾT KẾ MẪU
Đây là một bản hồ sơ kỹ thuật thi công đầy đủ các bộ môn Kỹ thuật – Kết cấu – Điện nước. Chúng tôi đã hoàn thiện công trình chuẩn theo thiết kế. Lưu ý không áp dụng để thi công khi chưa có sự đồng ý và dấu xác nhận của Công ty chúng tôi. Mọi trường hợp sử dụng để xây dựng sẽ hoàn toàn tự chịu trách nhiệm.
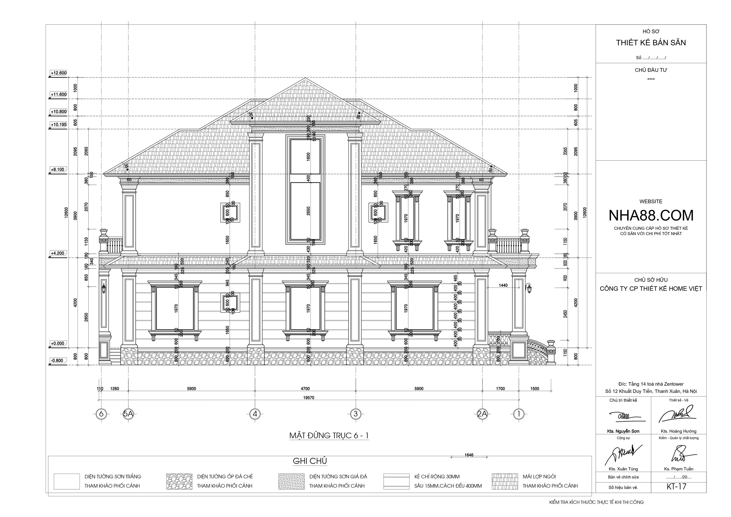
PHỐI CẢNH KIẾN TRÚC






1. Phối cảnh kiến trúc ngoại thất
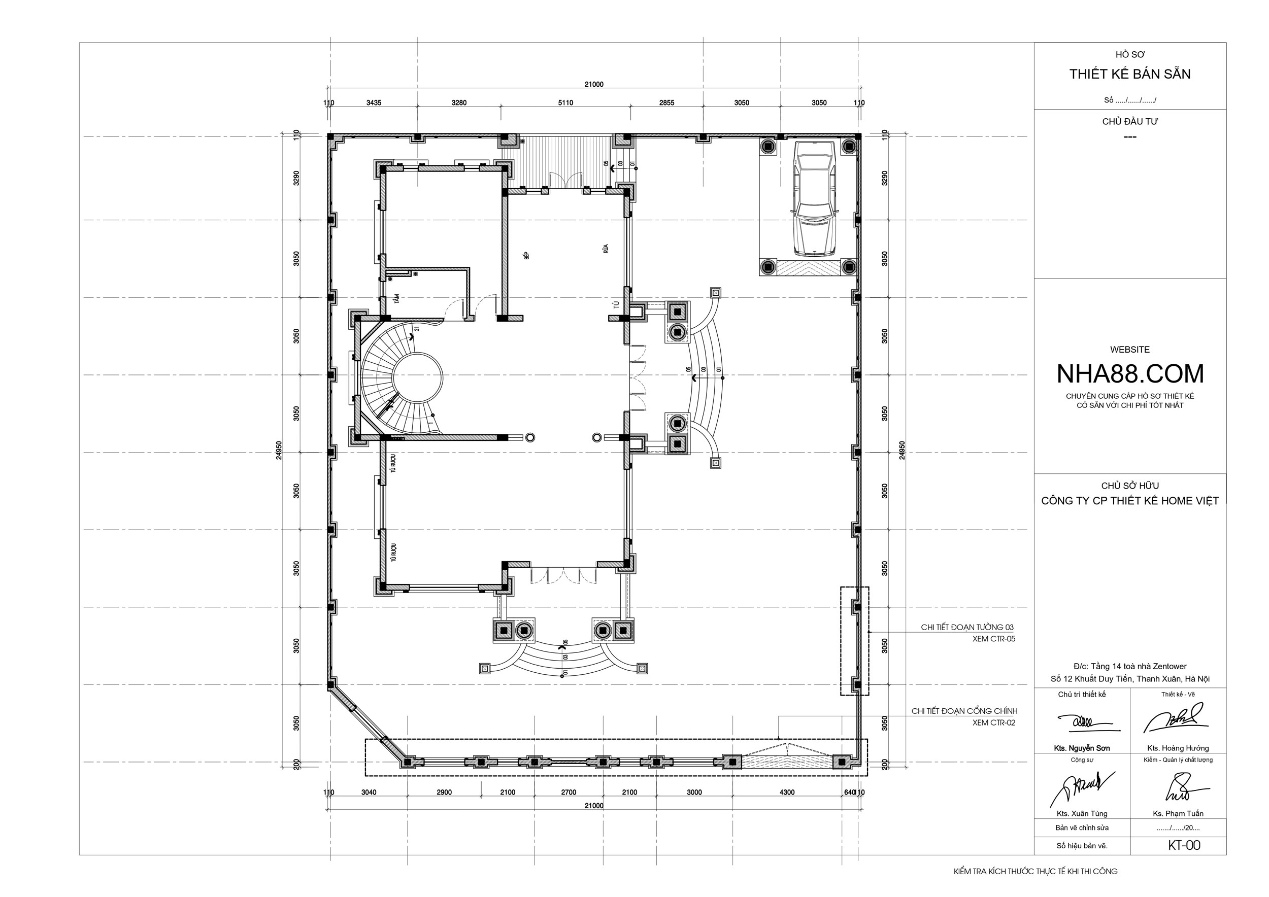
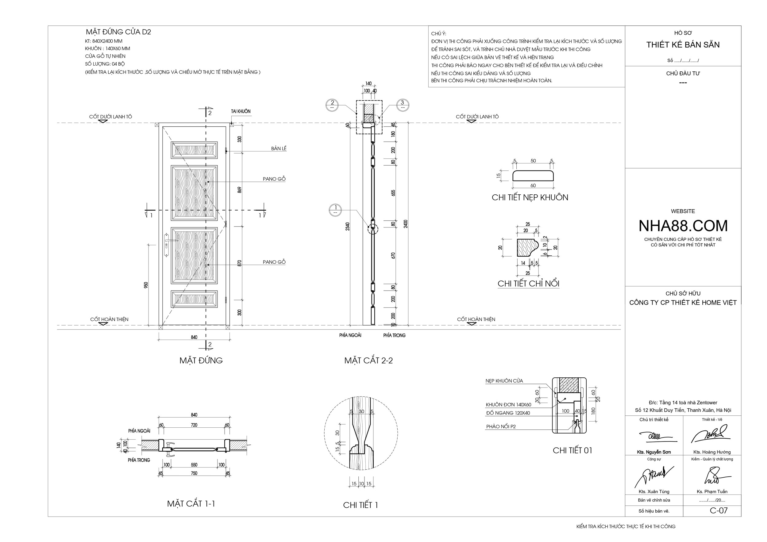
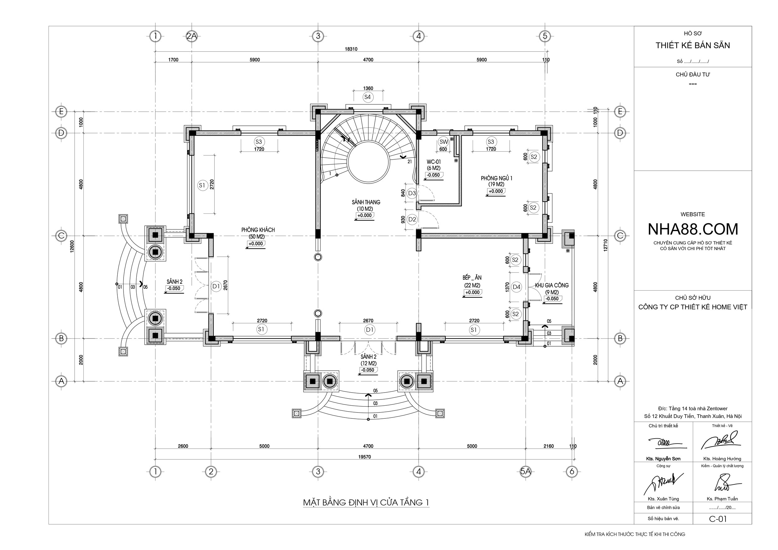
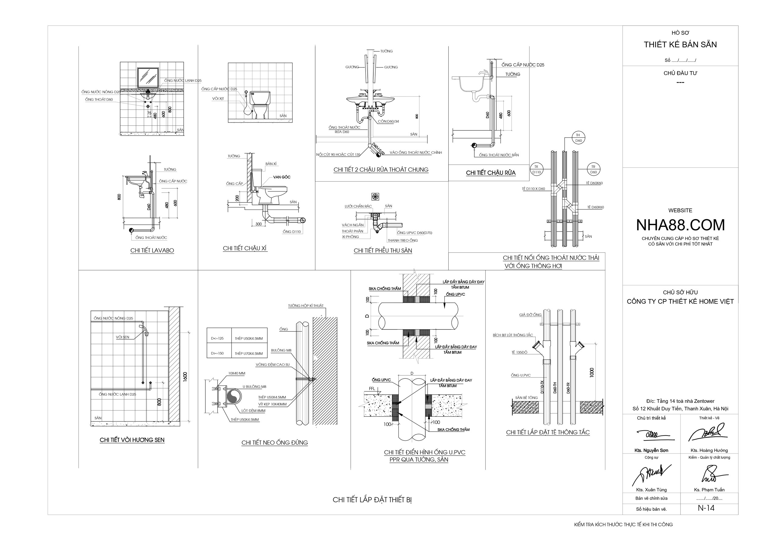
2. Hồ sơ kỹ thuật
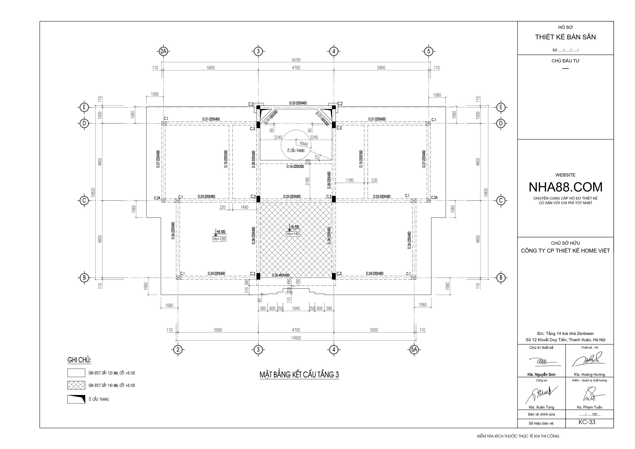
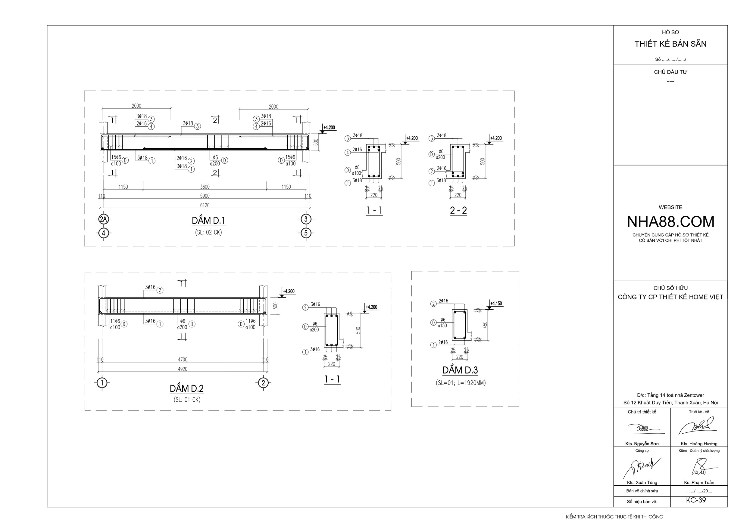
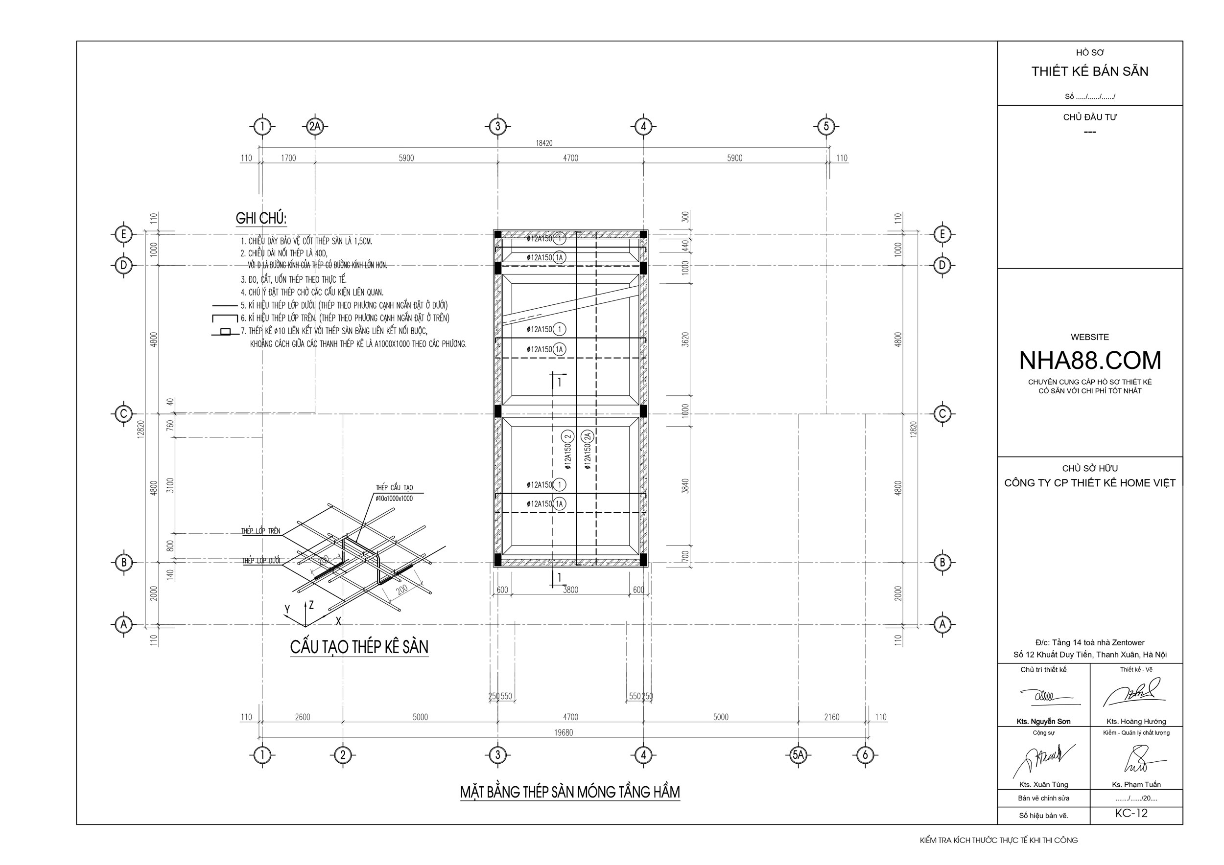
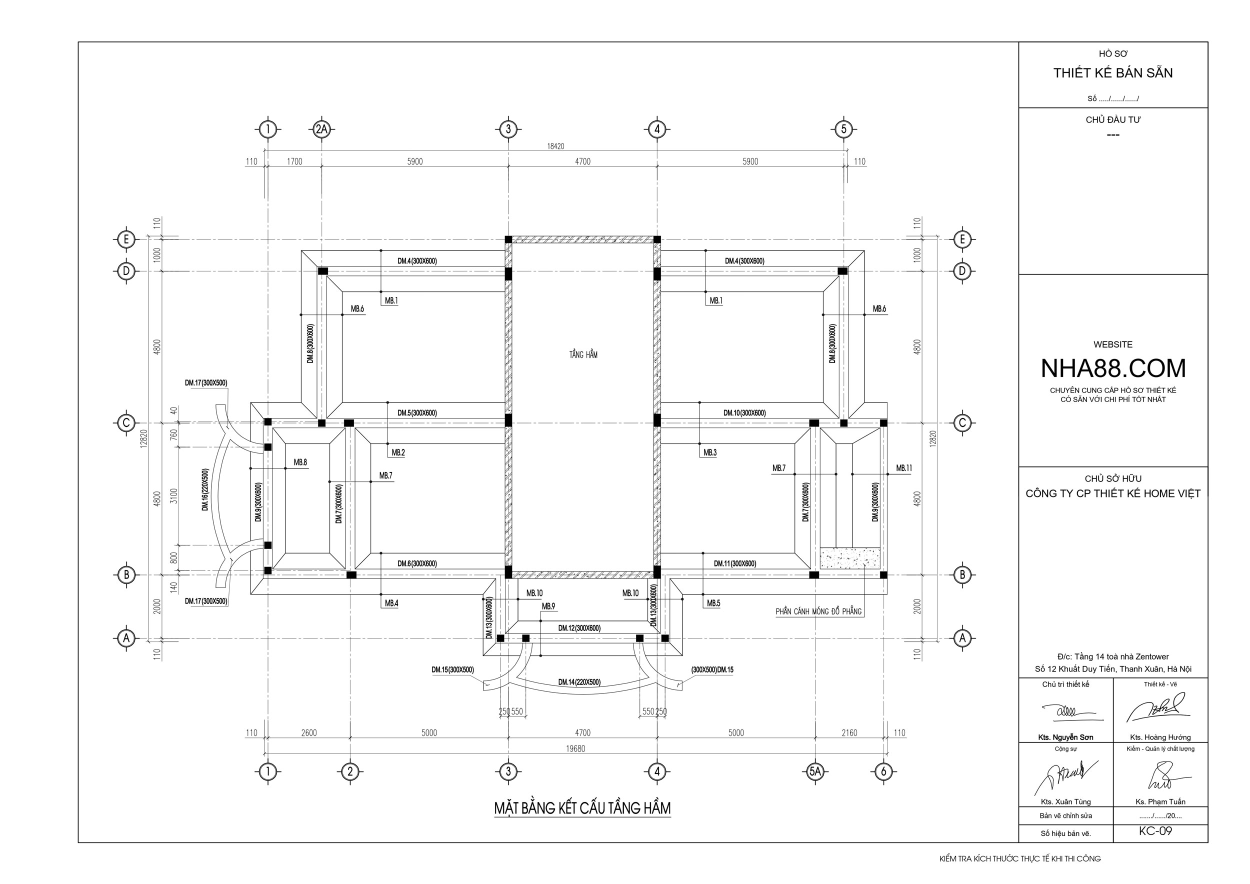
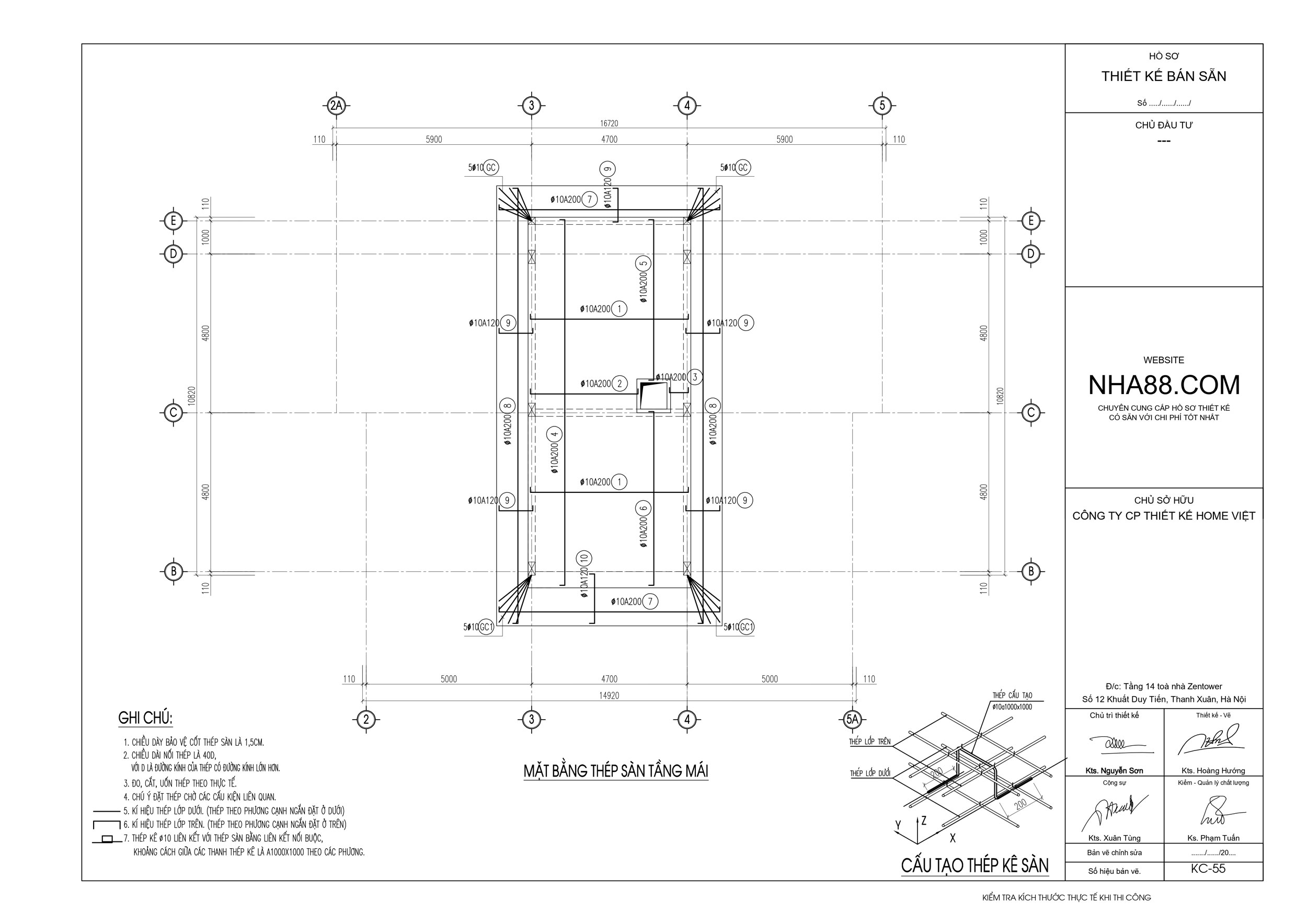
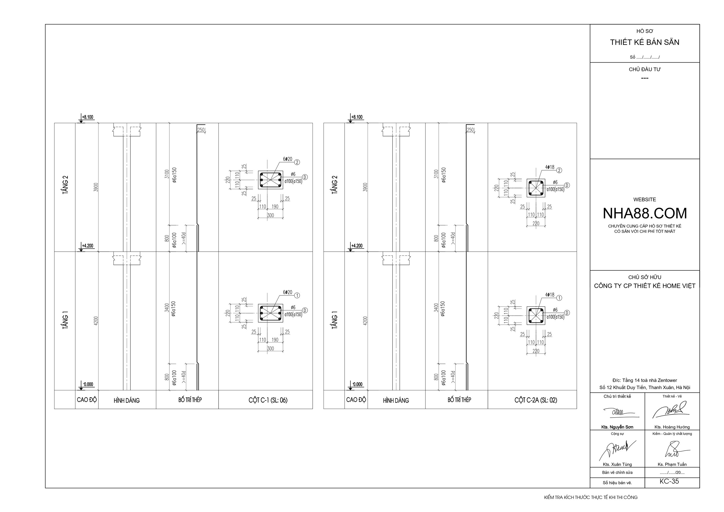
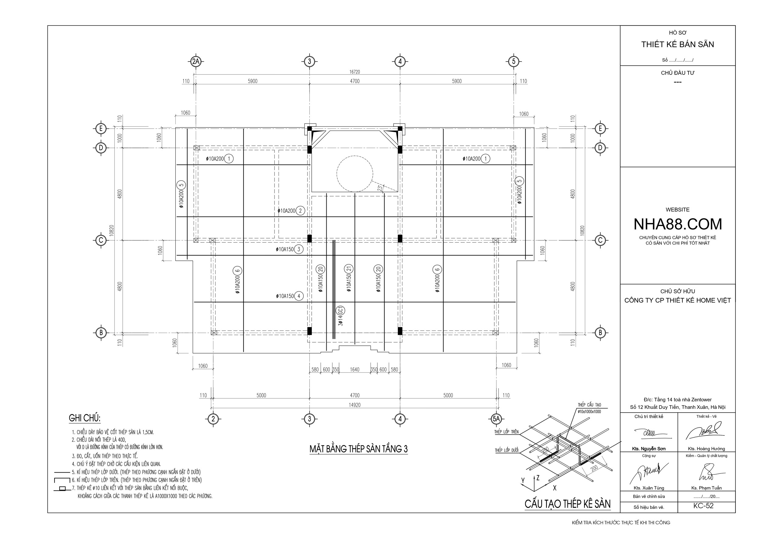
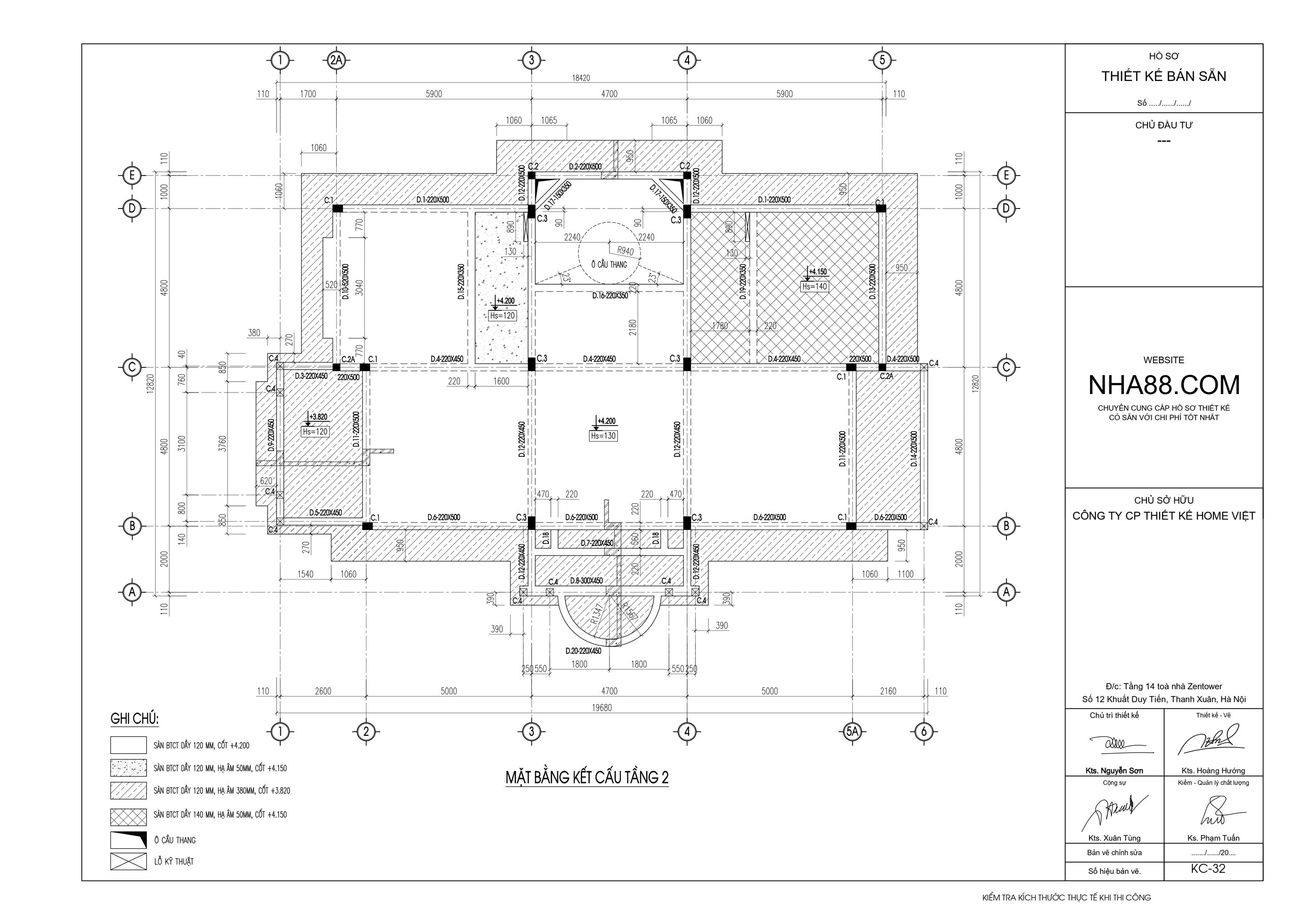
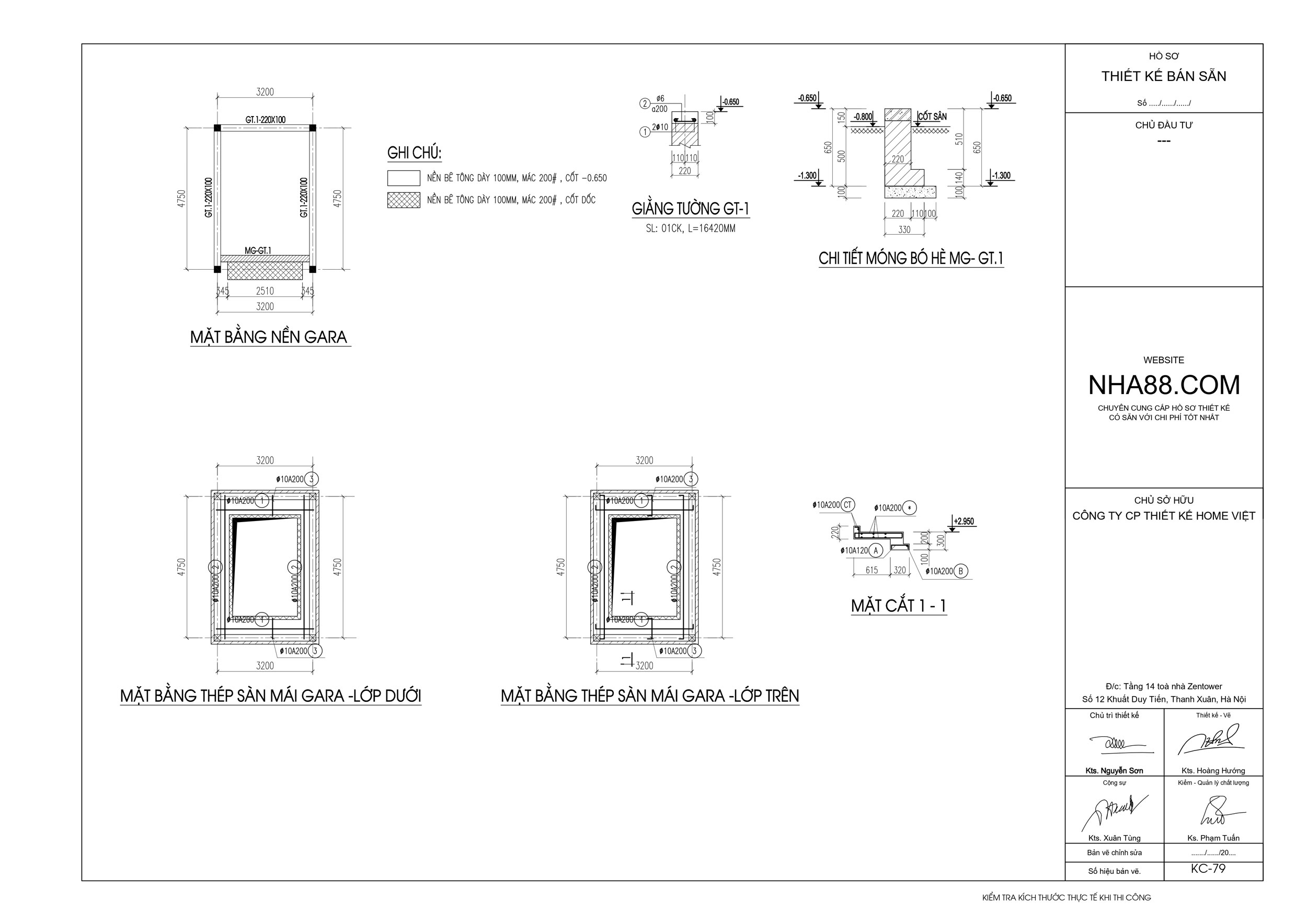
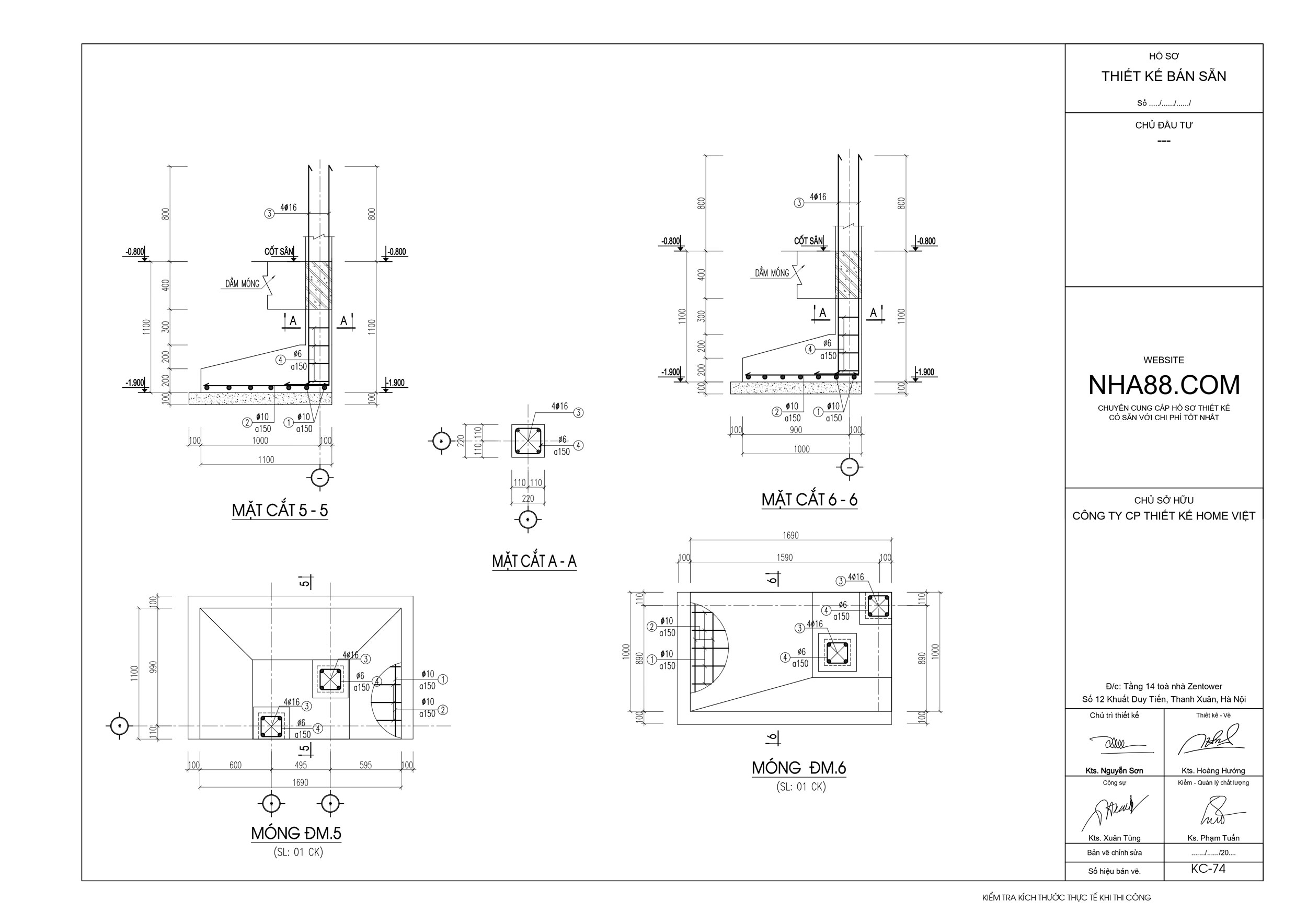
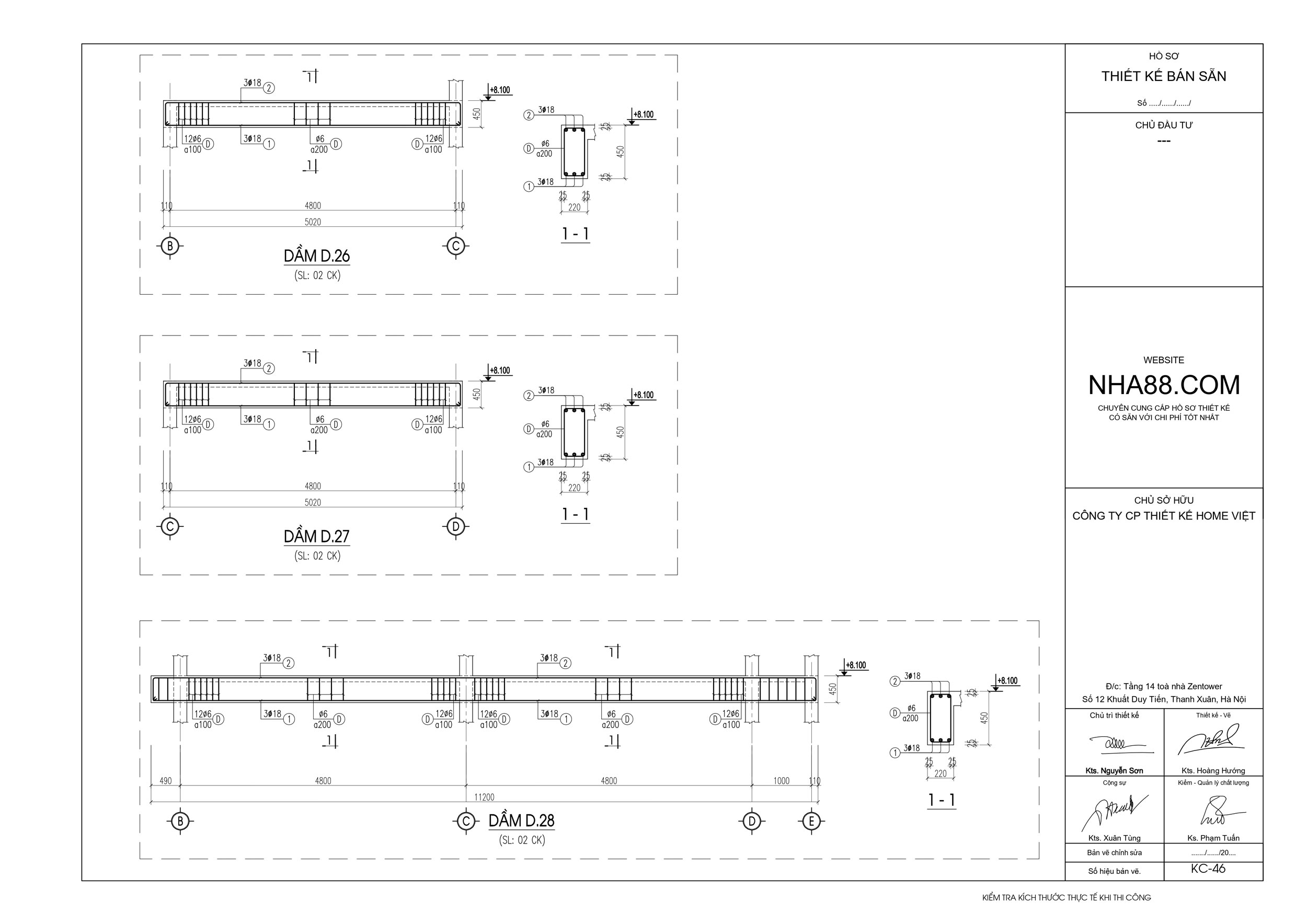
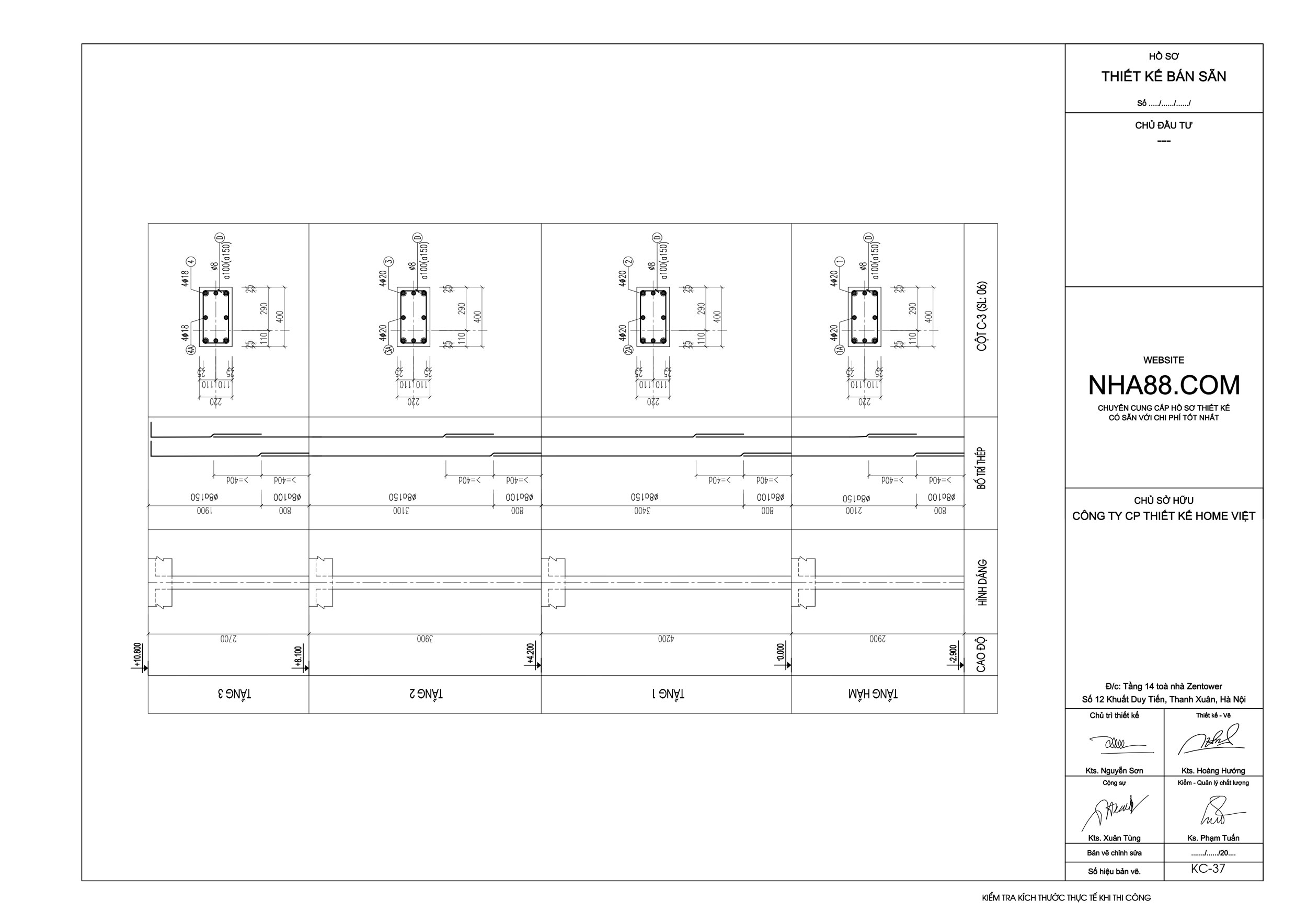
3. Hồ sơ kết cấu.
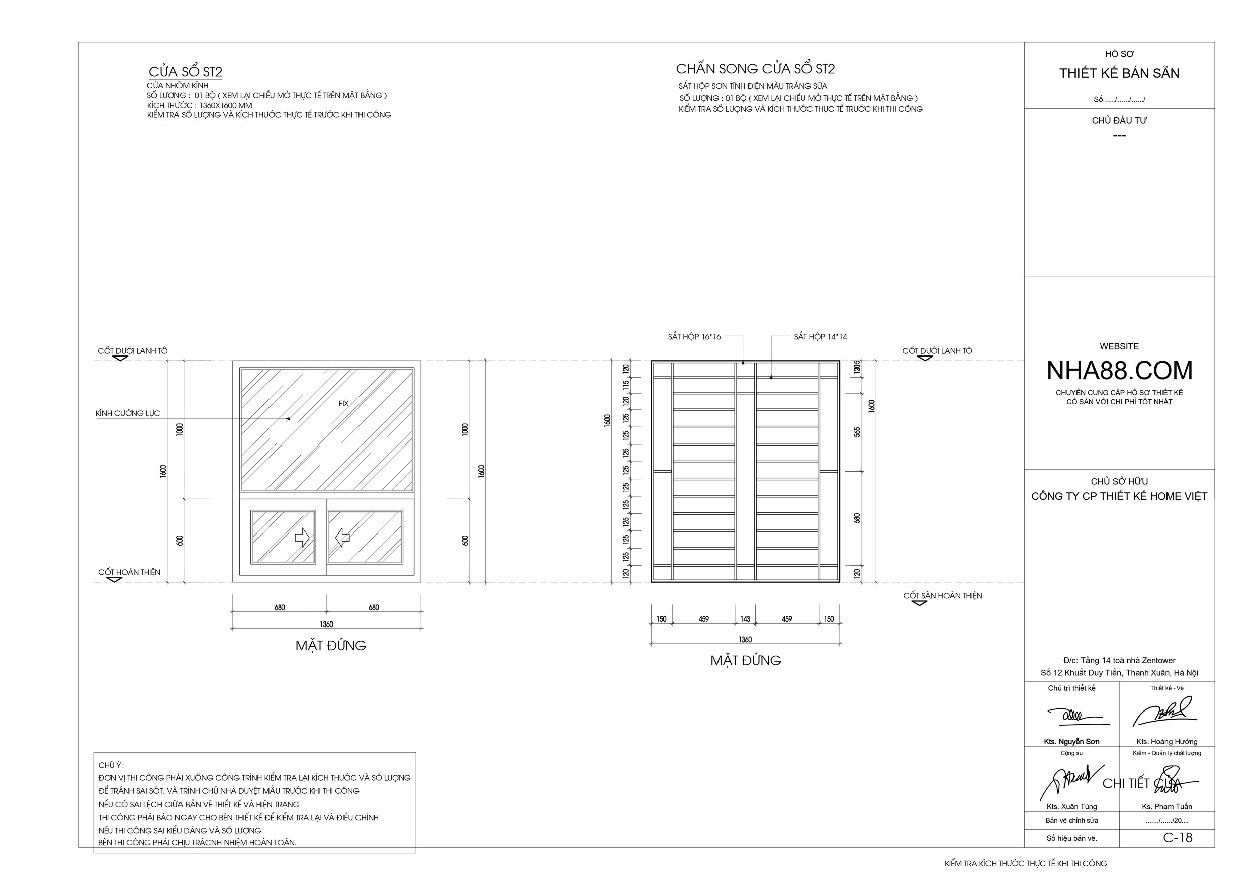
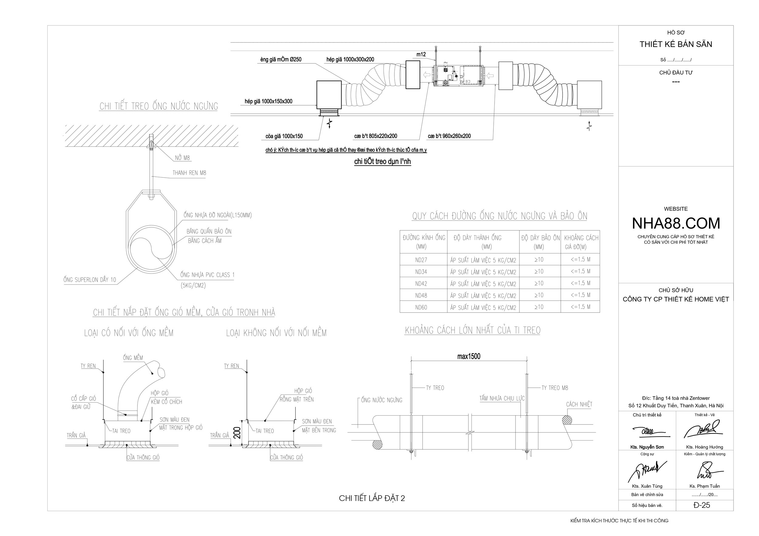
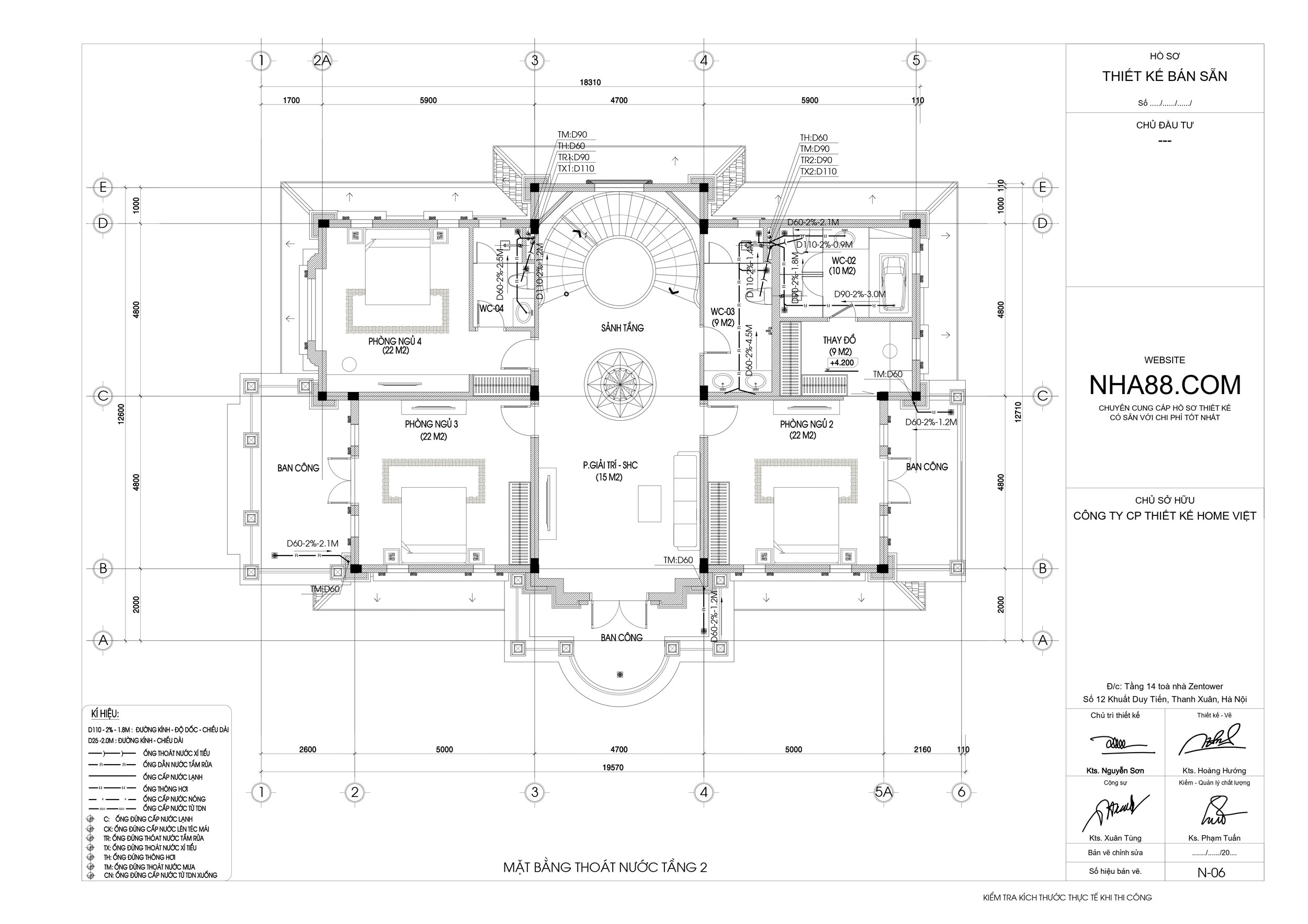
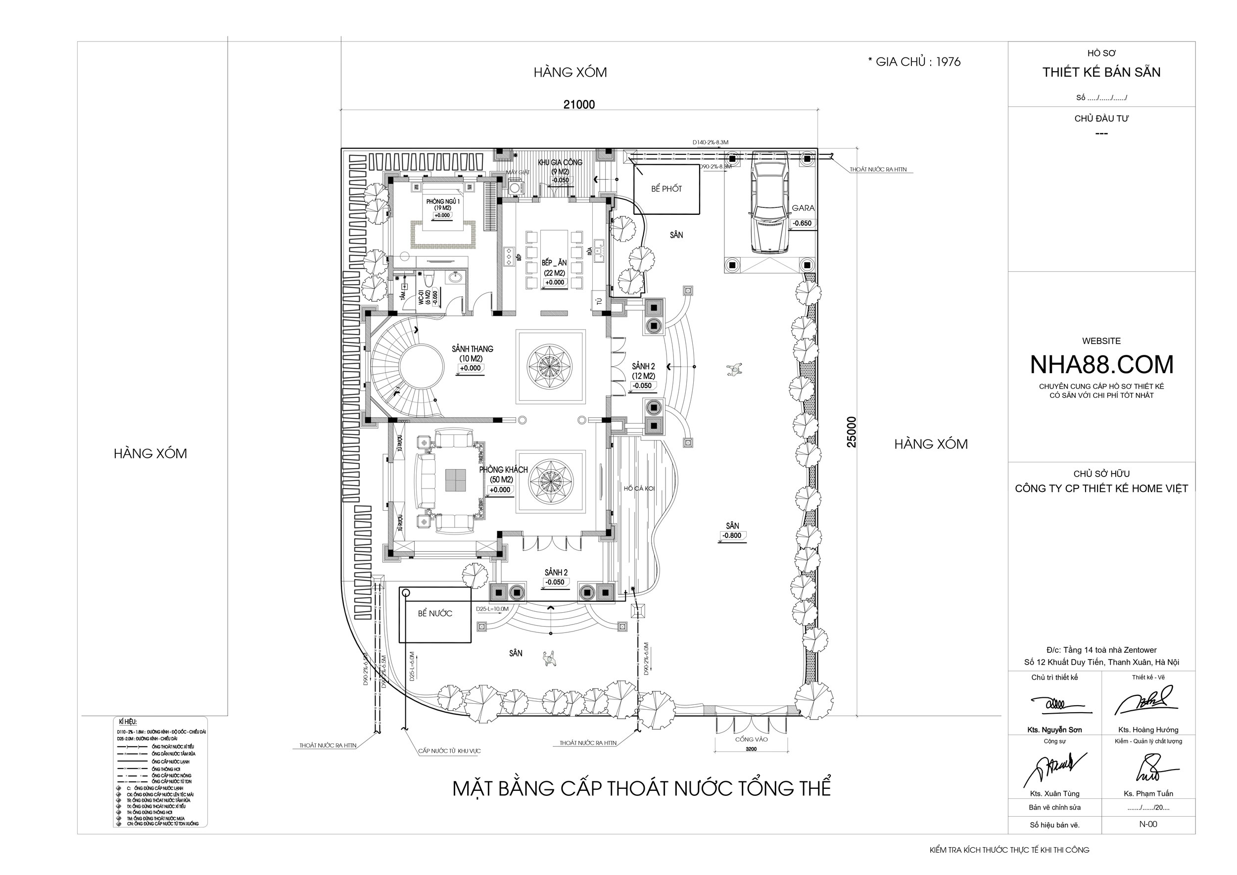
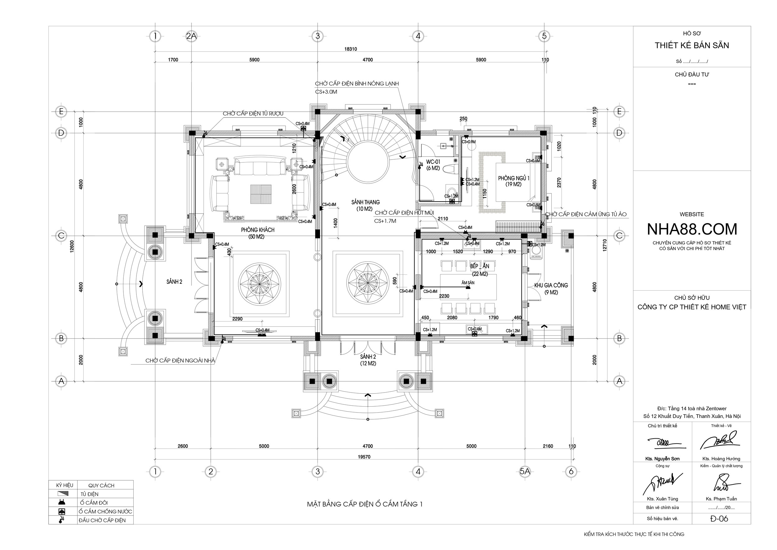
4. Hồ sơ điện nước.
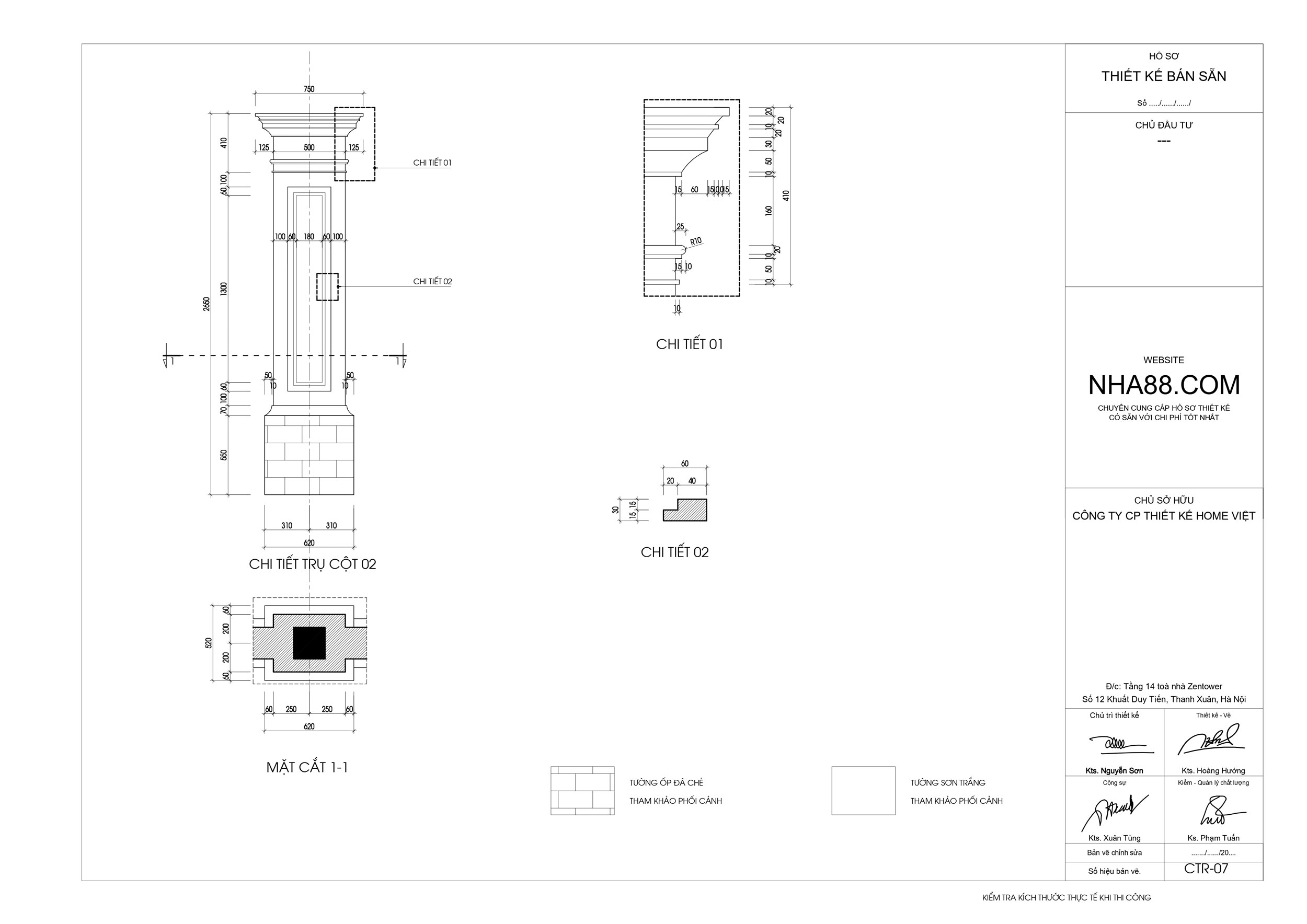
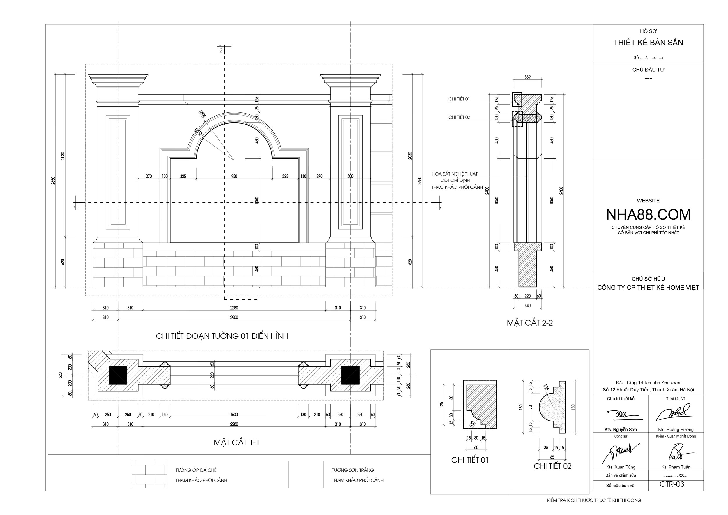
5. Tặng thiết kế tường rào theo kích thước đất
6. Hỗ trợ giải trình vướng mắc đến khi thi công hoàn thiện
7. Được chỉnh sửa mặt bằng công năng phù hợp với nhu cầu
8. Phối cảnh bên ngoài không được thay đổi.
LƯU Ý
+ Toàn bộ hồ sơ nhận bao gồm 02 quyển in A3 có dấu và chữ ký Công ty .
+ Ngoài ra chúng tôi không cung cấp file mềm hoặc định dạng khác, khách hàng lưu ý trước khi mua hàng để đảm bảo lợi ích giữa hai bên.
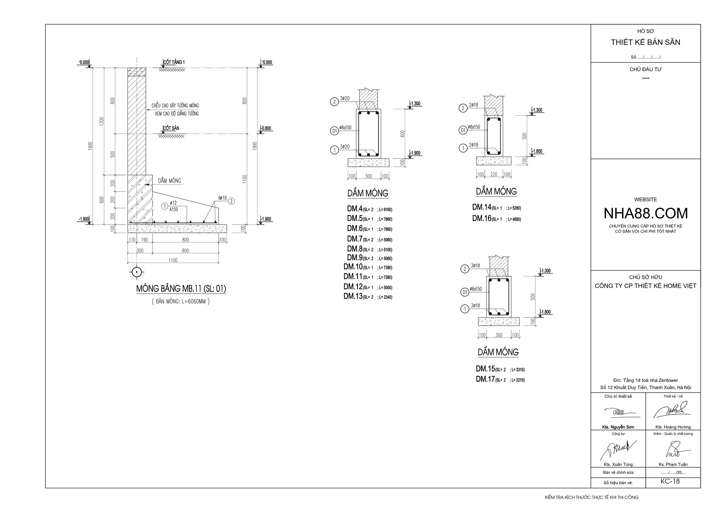
+ Điều chỉnh giải pháp kết cấu móng theo thực tế của mỗi lô đất.
CÔNG TRÌNH THỰC TẾ




HỒ SƠ BIỆT THỰ KHÁC

